Property
Beds
None
Full Baths
None
1/2 Baths
None
Year Built
1998
Sq.Footage
N/A
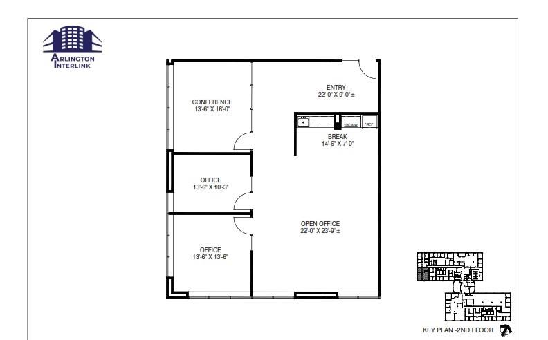
A planned spec suite with two offices, a conference room, an open area, and an open break room. Glass door entry door and a ton of natural light throughout. Ready for immediate occupancy. Space can add an additional 4 private offices if tenant requires. Monthly Lease plus electric. Lobby, corridor, and restroom renovations completed Q1 2023. Roadside Monument signage is available. 180k cars average per day. Instant access to to Arlington Entertainment District, Hwy 360, and I-30. 40 person conference facility amenity. Covered and reserved parking is available. Fresh vending available along with Parks Pantry.
Features & Amenities
Interior
-
Total Bedrooms
N/A
-
Bathrooms
N/A
-
Cooling YN
YES
-
Cooling
Central Air
-
Heating YN
YES
-
Heating
Central
-
Pet friendly
N/A
Exterior
-
Garage
No
-
Construction Materials
Concrete
-
Parking
Covered
-
Pool
No
Area & Lot
-
Lot Size(acres)
4.683
-
Property Type
Commercial Lease
-
Property Sub Type
Office
Price
-
Sales Price
$3,680
-
Zoning
Office
-
Sq. Footage
N/A
-
Price/SqFt
N/A
HOA
-
Association
No
School District
-
Elementary School
N/A
-
Middle School
N/A
-
High School
N/A
Property Features
-
Stories
2
-
Foundation Details
Concrete Perimeter
Schedule a Showing
Showing scheduled successfully.
Mortgage calculator
Estimate your monthly mortgage payment, including the principal and interest, property taxes, and HOA. Adjust the values to generate a more accurate rate.
Your payment
Principal and Interest:
$
Property taxes:
$
HOA fees:
$
Total loan payment:
$
Total interest amount:
$
Location
County
Tarrant
Elementary School
Middle School
High School
Listing Courtesy of Kolby Dickerson , TXRE Properties
RealHub Information is provided exclusively for consumers' personal, non-commercial use, and it may not be used for any purpose other than to identify prospective properties consumers may be interested in purchasing. All information deemed reliable but not guaranteed and should be independently verified. All properties are subject to prior sale, change or withdrawal. RealHub website owner shall not be responsible for any typographical errors, misinformation, misprints and shall be held totally harmless.
Office and Team Coordinator
MhamerSas
Call Mhamer today to schedule a private showing.
* Listings on this website come from the FMLS IDX Compilation and may be held by brokerage firms other than the owner of this website. The listing brokerage is identified in any listing details. Information is deemed reliable but is not guaranteed. If you believe any FMLS listing contains material that infringes your copyrighted work please click here to review our DMCA policy and learn how to submit a takedown request.© 2024 FMLS.
Related Properties