Features & Amenities

Interior

  • Other Interior Features

    Built-in Features, Cathedral Ceiling(s), Chandelier, Eat-in Kitchen, Granite Counters, Kitchen Island, Natural Woodwork, Open Floorplan, Pantry, Walk-In Closet(s), Wet Bar, High Speed Internet, Wired for Sound

  • Total Bedrooms

    2

  • Bathrooms

    2

  • 1/2 Bathrooms

    1

  • Basement YN

    NO

  • Cooling YN

    YES

  • Cooling

    Central Air, Electric

  • Fireplace YN

    YES

  • Heating YN

    YES

  • Heating

    Exhaust Fan, Central, Electric

  • Pet friendly

    N/A

Exterior

  • Garage

    No

  • Construction Materials

    Wood Siding

  • Other Exterior Features

    Dog Run, Fire Pit, Rain Gutters, Kennel, Lighting, Outdoor Grill, Private Entrance, Private Yard, Garden

  • Parking

    Circular Driveway, Driveway, Gravel, No Garage, RV Access/Parking, RV Carport, Boat

  • Patio and Porch Features

    Covered, Front Porch, Patio, Rear Porch

  • Pool

    No

  • Waterfront YN

    NO

Area & Lot

  • Lot Features

    Level, Cleared, Agricultural, Few Trees, Pasture, Landscaped

  • Lot Size(acres)

    28.192

  • Property Type

    Farm

  • Property Sub Type

    Farm

  • Architectural Style

    Ranch

Price

  • Sales Price

    $1,795,000

  • Tax Amount

    5998.0

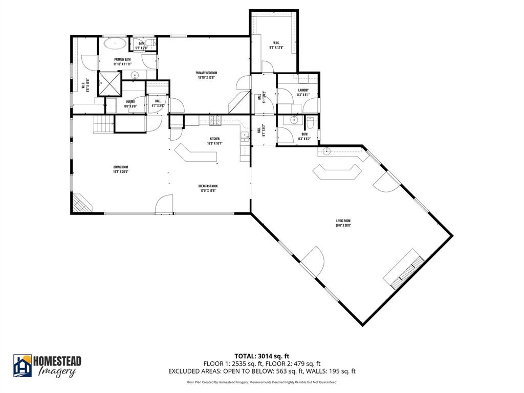
  • Sq. Footage

    3, 014

  • Price/SqFt

    $595

HOA

  • Association

    No

School District

  • Elementary School

    Whitesboro

  • Middle School

    Whitesboro

  • High School

    Whitesboro

Property Features

  • Foundation Details

    Slab

  • Senior Community YN

    NO

  • Sewer

    Septic Tank

Schedule a Showing

Showing scheduled successfully.

<
>
IN PERSON
VIA CHAT

What is 3 + 4 ?


Change time

Mortgage calculator

Estimate your monthly mortgage payment, including the principal and interest, property taxes, and HOA. Adjust the values to generate a more accurate rate.

Your payment

Principal and Interest:

$

Property taxes:

$

HOA fees:

$

Total loan payment:

$

Total interest amount:

$

Location

County

Cooke

Elementary School

Whitesboro

Middle School

Whitesboro

High School

Whitesboro

Listing Courtesy of Lynda Weaver , Lake & Country Realty, LLC

RealHub Information is provided exclusively for consumers' personal, non-commercial use, and it may not be used for any purpose other than to identify prospective properties consumers may be interested in purchasing. All information deemed reliable but not guaranteed and should be independently verified. All properties are subject to prior sale, change or withdrawal. RealHub website owner shall not be responsible for any typographical errors, misinformation, misprints and shall be held totally harmless.

Agent Mhamer Sas

Office and Team Coordinator

Mhamer Sas

Call Mhamer today to schedule a private showing.


* Listings on this website come from the FMLS IDX Compilation and may be held by brokerage firms other than the owner of this website. The listing brokerage is identified in any listing details. Information is deemed reliable but is not guaranteed. If you believe any FMLS listing contains material that infringes your copyrighted work please click here to review our DMCA policy and learn how to submit a takedown request.© 2024 FMLS.
Tucked away on over 28 acres of sandy loam soil, this private and peaceful property is just minutes from downtown Whitesboro on a paved county road.  Located in the heart of horse country, the estate offers the best in country living and has been designed for comfort, entertainment, and equestrian life. The property layout could easily accommodate a full training facility while maintaining the privacy of the residence. Everything has been carefully chosen to reflect an authentic ranch style decor. The main home features expansive front and back porches - perfect for quiet mornings or entertaining guests. Inside you'll find soaring vaulted ceilings, tile flooring, 3 fireplaces and an open layout. The living area boasts a stone fireplace, built-in cabinetry, surround sound wiring, and large windows with a view of the back pasture. The custom wet bar services the living space and the back porch. The dining room includes its own fireplace and leads to the loft and the gourmet kitchen - complete with a large eat-at island, granite countertops, Wolf gas range, stainless steel appliances, and a walk-in pantry. The primary suite features its own fireplace and an ensuite bath with a clawfoot tub, stand-alone shower and two oversized walk-in closets. Upstairs, the loft offers an office, a sleeping area, and a full bath with a shower. The studio guest house includes a screened-in porch for added privacy. Outdoor amenities include: 3 entertaining areas  including the “party barn”. 2 firepits. Covered RV parking with a dining area and a full “outhouse” bath with crystal chandelier. Barn with 4 interior and 4 exterior stalls, wash rack with hot & cold water, vet stock and an attached workshop with electricity. 40x40 hay barn. Dog kennels, multiple cattle pens with a squeeze chute. Perimeter fenced and cross-fenced into 4 pastures with automatic waterers. Furnishings, equipment, etc. may be negotiable if buyer is interested. Too many features to list—schedule your tour today!

993 County Line Road

Message successfully sent.

What would you like to know?

What is 3 + 4 ?

Related Properties

Price reduced
Available for the first time in over 20 years this 25 acre working ranch is a must see. Currently configured for a rodeo bull operation, this Swiss army knife of facilities can quickly be converted to suit almost any cattle or horse needs. The 265 x 140 arena is currently set up for roping. The property has three 40 x 30 barns that can be used in a variety of ways. With the proper approach and vision they could even be retrofitted to horse stalls if needed. The fourth barn a 47 x 35 has three stalls, wash rack, tack room and storage. The property is cross fenced. Allowing multiple turn out options. The home is 2100 square feet, three bedroom two bath with an open floor plan.
#21060858

Whitesboro

4378 Old Town Road

3 Beds

2 Baths

2,140 Sq.Ft.

$1,900,000

MLS#: 21060858

Premier 20-Acre Equine Facility  Prime Location South of Whitesboro on Hwy 377
An exceptional opportunity for horse enthusiasts or savvy investors  this 20-acre equestrian property offers a turnkey setup in one of North Texas’ most desirable horse country locations. Conveniently situated with dual road frontage on Highway 377 and Old Town Road, this property combines functionality, comfort, and excellent accessibility.
At the heart of the property is a 1,500 sq ft 2-bedroom, 2-bath Barndominium that connects directly to a well-equipped 15-stall barn. Each 13 x 12 stall includes a fly spray system, with wide 12-foot alleys for easy movement. The barn also features a tack room, storage space, and two hot water grooming bayswash racks.
Additional amenities include a 70-foot round pen, a full arena with return alley and catch pens (previously used for roping), and over 15 fenced paddocks  each with water access perfect for livestock rotation or boarding.
Surrounded by established horse ranches and located in a highly sought-after equine corridor, this facility is ideal for private use, boarding, training, or equestrian business ventures, commercial and or housing development. Whether you’re looking to expand an operation or establish a new home for your horses, this property delivers space, infrastructure, and location.
#20940674

Whitesboro

15084 US Highway 377

2 Beds

2 Baths

1,500 Sq.Ft.

$1,449,000

MLS#: 20940674

Price reduced
This almost 40 acre property is ready for you,your horses and livestock,right here in horse country Whitesboro Texas with quick easy access to Highway 82. The acreage is fenced with gravel drives, covered squeeze chute, working pens and a barn with 5 stalls with runs. There is a comfortable 2 bedroom 2 bathroom western style barndomium as well as an older mobile home on the property which could easily be replaced with another barndo.The 2 separate entries ready for gates have private driveways for two separate homesites. There is plenty of grass for all your creatures to graze, grow and thrive. Ample shade trees, highly desired sandy loam with lush bermuda grass that can be hayed or pasture for livestock This property creates a true operating Agriculture property in a quite rural area. It is ag exempt because it is an Ag operation. It could easily be divided and still maintain ag status. Land like this with the ease of commute, proximity yet rural lifestyle,rooted in Texas agriculture lifestyle doesn't come along very often. Whitesboro offers a great lifestyle and all the amenities without the crowds of the larger surrounding cities. This small town lives big  with dining, medical care, pharmacies, grocery store, shopping without traffic, crowds or a long drive. Yet the distance to surrounding areas offers you more without the hassle of living in lines and crowds, and if you want the Big City life you are less than an hour to all the Action of Dallas or Fort Worth. Start living your best Texas lifestyle now. Additional acreage available, Investment and development potential.
#21060936

Whitesboro

204 Cr 107

2 Beds

2 Baths

1,176 Sq.Ft.

$1,890,000

MLS#: 21060936

This 23-acre equine paradise offers TWO identical brick homes, each featuring three bedrooms, two and a half baths, and hardwood floors—perfect for multi-generational living, staff housing, or guest accommodations. A gated entrance with a long, tree-lined driveway sets the tone for this remarkable property, which also showcases an original Maritta McMillan equine statue as a focal point of arrival. The ranch is fully fenced and ag exempt, with 53 acres of hay pastures prime for development. Equestrian facilities include a show barn with 11x11 stalls and a brick alleyway, a massive 40’x100’ hay and storage barn, and a large shop with a three-carport. A separate barn is already prepped for completion as a mare motel, while over 20 spacious turnouts and a riding arena provide ample space for training and turnout. Combining functionality, space, and timeless beauty, this is a property you truly must see in person.
#21096527

Whitesboro

777 Stiles Road 789

6 Beds

4 Baths

4,490 Sq.Ft.

$1,799,999

MLS#: 21096527

 - property

Send a message

Message successfully sent.

Your message

What is 3 + 4 ?

Reason for contacting?

Sign Out

Virtual Assistant

Would you like to take the next step with this property? We can help you schedule a showing or virtual tour, or send you more details.

Yes, I would like more information.

Thank You for Your Reply, One of Our Agents will contact you as soon as possible

No, maybe later.

Thank you, you can always contact me via email, phone number or through the contact form.

Realhub AI

Lucy - Your AI-Powered Realtor

Update Your Temporary Password

Personalize your search

Enter your email and we'll notify you immediately when new listings match what you're looking for.

or enter email address

Already have an account ? Login here

Continue your home search

Already have an account ? Login here

We use cookies

We use cookies primarily for analytics to enhance your experience. By accepting, you agree to our use of these cookies. You can manage your preferences or learn more about our cookies policy.