Property
Beds
2
Full Baths
1
1/2 Baths
None
Year Built
1956
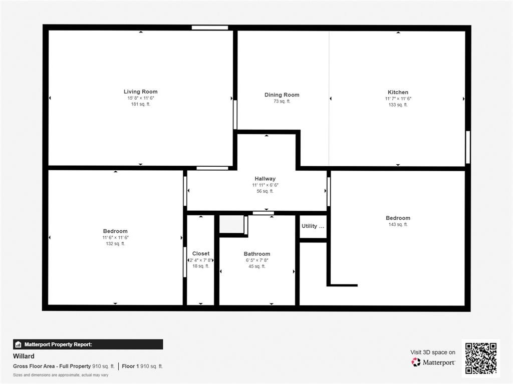
Sq.Footage
1,000
Welcome to 2807 Willard, a charming and affordable home offering a prime Tyler location with easy access to TJC, UT Tyler, major hospitals, shopping, and dining. Perfectly situated for convenience, this residence combines modern updates with great curb appeal. When the current owner purchased the property in 2023, it had just undergone a major renovation, giving buyers peace of mind with improvements to the roof, HVAC, electrical, and plumbing systems. Inside, you’ll find updated flooring throughout, fresh paint, modern lighting, new fixtures, and energy-efficient windows. The kitchen has been refreshed with contemporary counters, updated appliances, and flows seamlessly into an inviting eat-in dining area. Natural light fills the living room through large windows, creating a warm and welcoming space for relaxing or entertaining. Both bedrooms are generously sized and feature hard surface flooring for easy maintenance along with stylish, updated light fixtures. Practicality meets function with excellent storage options: there’s a storage room at the back of the covered carport plus an additional storage building in the fully fenced backyard. The outdoor space offers room for gardening, pets, or simply enjoying time outside. Whether you’re a first-time homebuyer, downsizing, or searching for an investment property, this well-maintained home is move-in ready and positioned for value in one of Tyler’s most convenient areas. Don’t miss the opportunity to make this beautifully updated home yours!
Features & Amenities
Interior
-
Other Interior Features
Eat-in Kitchen
-
Total Bedrooms
2
-
Bathrooms
1
-
Basement YN
NO
-
Cooling YN
YES
-
Cooling
Electric
-
Heating YN
YES
-
Heating
Electric
-
Pet friendly
N/A
Exterior
-
Garage
No
-
Construction Materials
Wood Siding
-
Parking
Carport
-
Patio and Porch Features
Covered
-
Pool
No
-
Waterfront YN
NO
Area & Lot
-
Lot Size(acres)
0.216
-
Property Type
Residential
-
Property Sub Type
Single Family Residence
-
Architectural Style
Other
Price
-
Sales Price
$199,000
-
Tax Amount
2618.0
-
Sq. Footage
1, 000
-
Price/SqFt
$199
HOA
-
Association
No
School District
-
Elementary School
Clarkston
-
Middle School
Hubbard
-
High School
Tyler Legacy
Property Features
-
Foundation Details
Pillar/Post/Pier
-
Tax Lot
4
Schedule a Showing
Showing scheduled successfully.
Mortgage calculator
Estimate your monthly mortgage payment, including the principal and interest, property taxes, and HOA. Adjust the values to generate a more accurate rate.
Your payment
Principal and Interest:
$
Property taxes:
$
HOA fees:
$
Total loan payment:
$
Total interest amount:
$
Location
County
Smith
Elementary School
Clarkston
Middle School
Hubbard
High School
Tyler Legacy
Listing Courtesy of Myriah Boles , Standard Real Estate
RealHub Information is provided exclusively for consumers' personal, non-commercial use, and it may not be used for any purpose other than to identify prospective properties consumers may be interested in purchasing. All information deemed reliable but not guaranteed and should be independently verified. All properties are subject to prior sale, change or withdrawal. RealHub website owner shall not be responsible for any typographical errors, misinformation, misprints and shall be held totally harmless.
Office and Team Coordinator
MhamerSas
Call Mhamer today to schedule a private showing.
* Listings on this website come from the FMLS IDX Compilation and may be held by brokerage firms other than the owner of this website. The listing brokerage is identified in any listing details. Information is deemed reliable but is not guaranteed. If you believe any FMLS listing contains material that infringes your copyrighted work please click here to review our DMCA policy and learn how to submit a takedown request.© 2024 FMLS.