Features & Amenities

Interior

  • Other Interior Features

    Built-in Features, Chandelier, Kitchen Island, Pantry, Walk-In Closet(s), High Speed Internet

  • Total Bedrooms

    4

  • Bathrooms

    3

  • 1/2 Bathrooms

    1

  • Basement YN

    NO

  • Cooling YN

    YES

  • Cooling

    Ceiling Fan(s), Central Air, Electric

  • Fireplace YN

    YES

  • Heating YN

    YES

  • Heating

    Central, Fireplace(s), Natural Gas

  • Pet friendly

    N/A

Exterior

  • Garage

    Yes

  • Garage spaces

    2

  • Construction Materials

    Brick, Stone

  • Other Exterior Features

    Balcony, Storage

  • Parking

    Concrete, Driveway, Garage Door Opener, Garage Faces Side, Attached

  • Pool

    Yes

  • Pool Features

    In Ground, Pool/Spa Combo, Salt Water

  • Waterfront YN

    NO

Area & Lot

  • Lot Features

    Cul-De-Sac, Few Trees, Landscaped, Many Trees

  • Lot Size(acres)

    0.529

  • Property Type

    Residential

  • Property Sub Type

    Single Family Residence

  • Architectural Style

    Traditional

Price

  • Sales Price

    $459,000

  • Tax Amount

    10756.0

  • Sq. Footage

    3, 712

  • Price/SqFt

    $123

HOA

  • Association

    No

School District

  • Elementary School

    Commerce

  • Middle School

    Commerce

  • High School

    Commerce

Property Features

  • Foundation Details

    Slab

  • Sewer

    Public Sewer

  • Tax Lot

    7

  • Water Source

    Public

Schedule a Showing

Showing scheduled successfully.

<
>
IN PERSON
VIA CHAT

What is 3 + 4 ?


Change time

Mortgage calculator

Estimate your monthly mortgage payment, including the principal and interest, property taxes, and HOA. Adjust the values to generate a more accurate rate.

Your payment

Principal and Interest:

$

Property taxes:

$

HOA fees:

$

Total loan payment:

$

Total interest amount:

$

Location

County

Hunt

Elementary School

Commerce

Middle School

Commerce

High School

Commerce

Listing Courtesy of Amanda Stewart , All City Real Estate Ltd. Co

RealHub Information is provided exclusively for consumers' personal, non-commercial use, and it may not be used for any purpose other than to identify prospective properties consumers may be interested in purchasing. All information deemed reliable but not guaranteed and should be independently verified. All properties are subject to prior sale, change or withdrawal. RealHub website owner shall not be responsible for any typographical errors, misinformation, misprints and shall be held totally harmless.

Agent MhamerSas

Office and Team Coordinator

MhamerSas

Call Mhamer today to schedule a private showing.


* Listings on this website come from the FMLS IDX Compilation and may be held by brokerage firms other than the owner of this website. The listing brokerage is identified in any listing details. Information is deemed reliable but is not guaranteed. If you believe any FMLS listing contains material that infringes your copyrighted work please click here to review our DMCA policy and learn how to submit a takedown request.© 2024 FMLS.
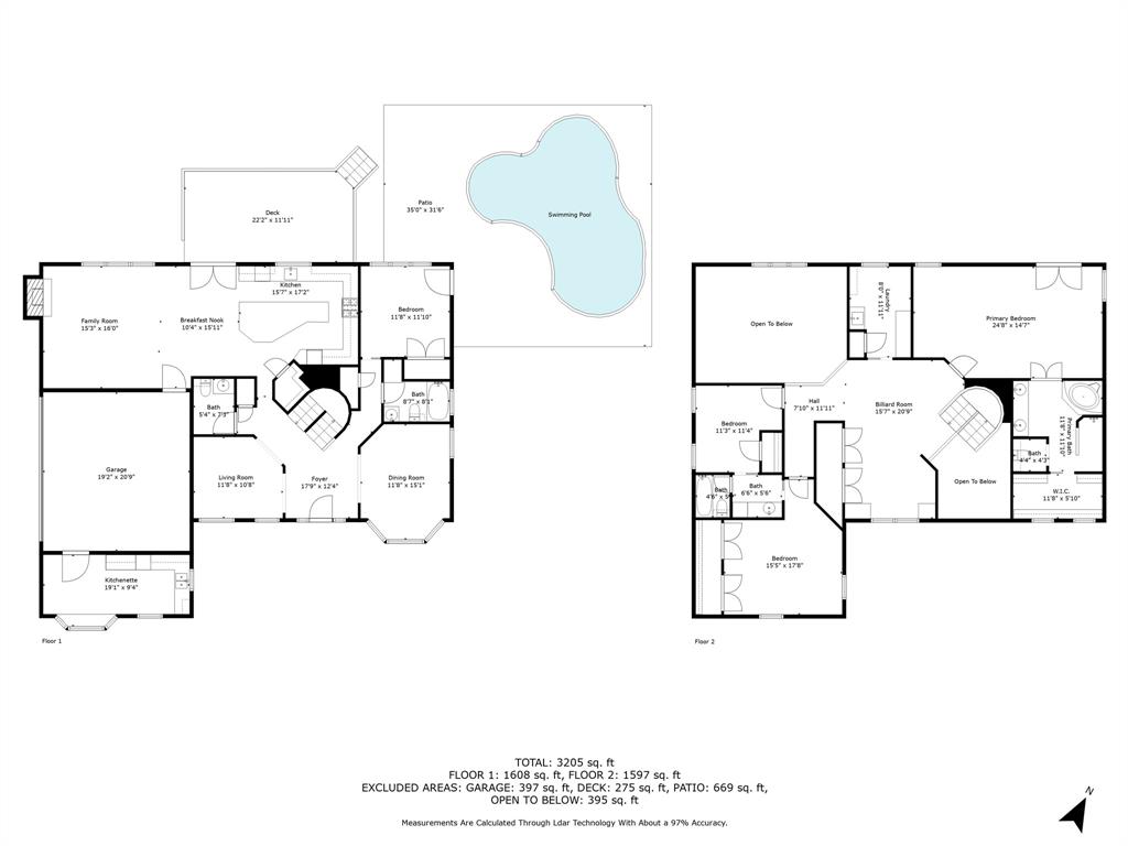
***MOTIVATED SELLER - BRING ALL OFFERS*** This stunning custom-built home sits on a spacious lot in a desirable cul-de-sac neighborhood, offering both privacy and convenience. Designed with entertaining and functionality in mind, this home features two kitchens, two living areas, and two dining areas — perfect for hosting gatherings or indulging your love of cooking and baking.

The main kitchen boasts a large island with a vegetable sink and storage, a full-size sink overlooking the backyard, a gas cooktop, abundant counter and cabinet space, and a walk-in pantry. The second kitchen, located off the garage, is a baker’s dream with a double oven (including convection), extra storage, and prep space.

The family room, open to the main kitchen, features built-ins and a beautiful fireplace as the centerpiece, along with large windows that fill the space with natural light and frame views of the backyard. At the front of the home, the formal living and dining areas, along with a half bath, create an elegant welcome for guests. A large first-floor bedroom with built-ins — ideal for an office or guest suite — sits next to a full bath.

Upstairs, a spacious game room or bonus area connects to the large utility room and two secondary bedrooms that share a convenient Jack-and-Jill bath. The primary suite is a true retreat with a private balcony, jetted tub, separate shower, and a generous walk-in closet.

Outdoor living is equally impressive, featuring a large deck, mosquito misting system, and a gorgeous saltwater pool and spa, all surrounded by mature trees that enhance the home’s beauty and curb appeal.

Despite its serene setting, this property is just minutes from the university with easy access to Highways 24 and 11 — offering the perfect blend of tranquility and convenience. This home is truly one you must see in person!

2012 Creekview Drive

Message successfully sent.

What would you like to know?

What is 3 + 4 ?

Related Properties

NEW! NEVER LIVED IN. Ready NOW! Prepare to be impressed by this Carolina IV plan, showcasing a striking brick and stone facade with beautiful stone detailing, enhanced exterior lighting, and an elegant 8' Front Door that opens to a Grand Rotunda Entrance and a thoughtfully designed open layout packed with fully upgraded features. Nestled on a desirable interior lot, this home offers 4 bedrooms and 3 baths—three bedrooms conveniently located on the main floor and an additional bedroom upstairs. The Deluxe Gourmet Kitchen is built to impress, now elevated with extended cabinetry and countertops, a Deco-style backsplash, a motion-activated pantry light, Satin Nickel fixtures, and a built-in oven and microwave tower, all paired with upgraded granite surfaces and a walk-in pantry. A massive island anchors the space, while pot and pan drawers and upgraded painted cabinets with contemporary hardware add both function and style. Enhancements continue throughout the home with luxurious Wood Laminate flooring, upgraded tile in all wet areas, and a stacked stone-to-ceiling fireplace with a cedar mantel serving as a stunning centerpiece in the Family Room. A tankless water heater adds efficiency, and upstairs, the Game and Closed Media Rooms, paired with a built-in Tech Center, offer versatile living and working options. Even the bathrooms shine with upgraded tub and shower surrounds, color-coordinated tile patterns, and custom countertops throughout. Step outside to a huge Extended Covered Patio with a gas stub, perfect for weekend grilling, and enjoy the spacious backyard. Community amenities, including a playground and park, further enhance the exceptional lifestyle this beautifully appointed home delivers.
#20993938

Commerce

204 Sweetwater Drive

4 Beds

3 Baths

3,285 Sq.Ft.

$496,212

MLS#: 20993938

NEW & NEVER LIVED IN BEFORE! Ready NOW! This sprawling single-story home by Bloomfield Homes offers an open-concept living area, 3 bedrooms, 3 full baths, and a dedicated Media Room—perfect for relaxed nights in or entertaining. Plenty of curb appeal is provided by an all-brick façade, a distinctive gas-drop J-Swing Garage, and an upgraded 8' Front Door, all set on an irregular and oversized homesite that offers both character and space. Inside, top-tier Wood floors flow through the common areas, and large windows line the Family Room for a bright and airy feel, centered around a striking Fireplace that reaches the cedar mantel to create a cozy, elevated focal point. The Deluxe Kitchen is a chef’s dream with a drop-in gas cooktop, built-in Stainless Steel Appliances, pot and pan drawers, a wood vent hood, and gleaming Quartz counters that reflect the thoughtful design throughout. The spacious Primary Suite is tucked away at the back of the home for privacy and comfort, with a well-appointed ensuite bath, while two additional bedrooms—including one with a private bath—are thoughtfully separated on the opposite side of the layout. A mudroom adds everyday convenience, and thoughtful touches like window seating, blinds, and full gutters complete the home. Step outside to a generous Covered Patio overlooking the expansive backyard—perfect for enjoying East Oak Creek’s tranquil setting. With all the most popular features and design selections, this one won't sit long. Call Bloomfield at East Oak Creek today to learn more!
#20980889

Commerce

200 Eagle View Lane

3 Beds

3 Baths

2,255 Sq.Ft.

$458,924

MLS#: 20980889

*Contact Community Manager for incentives!* NEW! NEVER LIVED IN. Home is move-in ready NOW! Looking for something unique? Bloomfield's beloved Dogwood III floor plan doesn't feel like another cookie-cutter build! Built for those who love sunlight, the Dogwood III features a wide front porch and an open-concept living space with a sloped vaulted ceiling, second-floor overlook, and over 30 feet of windows! The backyard sits along a mature tree line and the home is close to the rear community entrance - much more rural, private feel on this side! Most of the living is done on the first floor of this home, with all but one of the 4 bedrooms downstairs. A flexible study was placed off the entrance with french doors, and upstairs has a central Game Room for a second private living space. Upgraded flooring was selected throughout the first floor, including waterproof and scratch-resistant Mohawk Laminate Wood in vintage hickory. The kitchen and all baths have modern, white shaker cabinets with matte black pulls topped by exotic granite countertops. This home comes with stainless steel appliances, a tankless water heater, dedicated laundry room, tech center, full rain gutters, 2-inch faux wood blinds, and a gas stub on the back covered patio so you can easily connect your grill! Visit Bloomfield's model home to catch a tour of this charming home that's full of character - we're open daily!
#21006484

Commerce

104 Saddlewood Trail

4 Beds

3 Baths

2,333 Sq.Ft.

$383,153

MLS#: 21006484

NEW! NEVER LIVED IN. Ready to move-in NOW! The Cypress, Bloomfield's most sought-after single-story home, is designed to exceed your expectations with thoughtful upgrades and elegant touches throughout. Offering 4 bedrooms, 2 baths, and a spacious open living area, this home seamlessly blends a Gourmet Kitchen, Dining Room, and Family Room, all enhanced by Quartz countertops, under-cabinet lighting, a gas cooktop, and upgraded hardwood floors that extend gracefully through the main traffic areas. The Family Room is anchored by a striking wood-burning fireplace, while the adjacent covered back patio extends the living space outdoors—perfect for entertaining or unwinding. The Primary Suite is a true retreat, featuring a garden tub, separate shower, dual sinks, and a tall walk-in closet. Additional highlights include a tankless water heater, a walk-in pantry for added storage, and a generous 3-car garage. Located in East Oak Creek, where residents enjoy access to a scenic park and playground, this home is built for both comfort and lifestyle. Stop by or call Bloomfield at East Oak Creek today to learn more about this exceptional opportunity!
#20980721

Commerce

301 Saddlewood Trail

4 Beds

2 Baths

2,043 Sq.Ft.

$414,164

MLS#: 20980721

NEW! NEVER LIVED IN. Ready NOW! The Caraway plan from Bloomfield Homes is a thoughtfully designed single-story home with 4 bedrooms, 3 baths, and a versatile 2.5-car garage. Its open-concept layout is anchored by a bright Family Room with oversized windows and soaring ceilings, highlighted by a stacked stone-to-ceiling fireplace with a cedar mantel. Upgraded tile flooring flows through the main living spaces, blending durability with modern style. The Deluxe Kitchen is equipped with Pure White Shaker cabinets, Quartz countertops in Astoria White, built-in stainless steel appliances including a double oven, and a wood vent hood above a gas cooktop. Functionality shines with extras like a pull-out trash bin, motion-sensor pantry lighting, pendant and under-cabinet lighting, and raised panel backs at the island. Bedroom 2 serves as a private suite with its own full bath, while Bedrooms 3 and 4 are tucked on their own wing, connected by a shared hall bath. The spacious Primary Suite is a retreat at the rear of the home, complete with dual vanities, a drop-in deck mount tub, a separate shower with seat, a linen closet, and a walk-in closet that conveniently connects to the utility room. Outside, the brick-and-stone exterior with upgraded buff mortar, cedar garage doors, and a welcoming brick front porch creates standout curb appeal. A covered patio with a ceiling fan, a gas stub, and full gutters extends the living space outdoors. Visit Bloomfield Homes at East Oak Creek in Commerce today to make it yours!
#21048782

Commerce

133 Saddlewood Trail

4 Beds

3 Baths

2,527 Sq.Ft.

$456,254

MLS#: 21048782

MUST SEE!! This Home is truly a Treasure and Great for Family Entertaining. Spacious Oasis on this 1.6 Acre Corner Lot. Backyard has lots of Trees. Large outdoor Patio great for big Family BBQ's, amazing Sunsets and nights by a Firepit. Large Open Living Room right off of Large Chef Style Kitchen with lots of Counter space and Storage. Beautiful Built in Stained Sideboard Cabinet, Kitchen Cabinets and Granite counter tops. Secondary Primary Bedroom with private Ensuite Bathroom. Lots of Storage. There is a Carport that has and oversized One Car Workshop that Foam Encapsulated, Lots of lighting and plugs, Windows, a Garage Door and 2 Walkout Doors. There are 6 covered Parking Spaces. Wood perimeter fencing around the back and sides. Cummings Generator with propane fuel system. Well with Pump House for irrigations. Homes Security System with Cameras.
#20963618

Commerce

3135 Woodglen Drive

4 Beds

3 Baths

2,201 Sq.Ft.

$474,900

MLS#: 20963618

Price reduced
*Contact Community Manager for incentives!* NEW CONSTRUCTION READY TO CLOSE! NEVER LIVED IN. The Woodrose plan by Bloomfield Homes delivers 4 bedrooms, 2.5 baths, and layered comfort across two spacious stories in East Oak Creek. Its striking brick-and-stone exterior sets a confident tone, framed by clean rooflines and an 8-foot fiberglass front door that opens to light-filled interiors. The heart of the home is the kitchen, where deep-toned cabinetry contrasts beautifully with speckled granite countertops and stainless-steel appliances. A broad island offers room for casual seating, while open sightlines connect the kitchen to the dining and living areas for easy flow. Warm laminate wood floors run throughout the main level, adding texture and a sense of continuity. A private study with French doors sits just off the entry — ideal for work, reading, or creative space. The first-floor primary suite is tucked away for privacy and features dual sinks, a glass-enclosed shower, and a generous walk-in closet. A large upstairs  game room creates a bright second living zone surrounded by 3 bedrooms and 2 full baths, offering flexibility for guests or downtime. Blinds on every window, a full gutter system, and an upstairs laundry room make daily life effortless, while soft neutral finishes throughout keep the interior calm and cohesive. Out back, the covered patio opens to a level yard that’s ready for personal touches. The Woodrose blends tactile materials, natural light, and Bloomfield’s craftsmanship into a home that feels both refined and grounded within the growing East Oak Creek community of Commerce. Visit our model homes and the community to see for yourself!
#21109879

Commerce

224 Eagle View Lane

4 Beds

3 Baths

3,056 Sq.Ft.

$377,010

MLS#: 21109879

Welcome to 1702 Kings Lane, a beautifully maintained 4-bedroom, 2.5-bath home with a dedicated office space, nestled on a quiet street in one of Commerce’s most desirable and established neighborhoods.

This home offers an ideal blend of space, comfort, and flexibility—perfect for growing families, remote workers, or anyone who needs room to spread out. Inside, you’ll find a warm, welcoming layout with generously sized bedrooms, a separate office for working or studying from home, and multiple living and dining areas that make daily living and entertaining effortless.

The kitchen features ample cabinet storage, plenty of prep space, and a functional flow into the dining area. The primary suite includes a private bath, while two additional bathrooms accommodate guests and family with ease.

Located just minutes from Texas A&M University-Commerce, local schools, parks, restaurants, and shopping—this home offers both small-town peace and big opportunity.
#21002008

Commerce

1702 Kings Lane

4 Beds

2 Baths

2,200 Sq.Ft.

$415,000

MLS#: 21002008

NEW! NEVER LIVED IN. Ready NOW! Bloomfield Homes has the perfect single-story option—Our Jasmine floor plan is a transitional, open-concept design featuring 4 bedrooms and 3 baths. Full of windows, tall ceilings, and flexible space with designer finishes, this home showcases upgraded tile, cabinets, carpet, and countertops that elevate every room with a refined yet comfortable feel. Laminate wood floors provide scratch-resistant beauty throughout the common areas, complemented by wood flooring in high-traffic zones for added durability. A striking Stone-to-Ceiling Fireplace with a cedar mantel brings warmth and character to the Family Room, while the Kitchen impresses with Quartz countertops, custom cabinetry, Stainless Steel Appliances, and a gas cooktop—all anchored by a thoughtful layout that includes a mud room for daily functionality. The Primary Suite is privately located at the back of the home, offering a quiet retreat with a spacious walk-in closet, dual sinks, a soaking tub, and a separate shower. Three additional bedrooms are thoughtfully arranged with access to two full secondary baths, providing flexibility for guests, work, or play. Outside, a charming brick and stone facade pairs beautifully with a fully landscaped lot, full gutters, and an upgraded 8' Front Door for lasting curb appeal. A tankless water heater adds energy efficiency, and community amenities like a park and playground offer added value in East Oak Creek. Come see what makes this Jasmine stand out from the rest!
#20980799

Commerce

200 Sweetwater Drive

4 Beds

3 Baths

2,102 Sq.Ft.

$419,384

MLS#: 20980799

 - property

Send a message

Message successfully sent.

Your message

What is 3 + 4 ?

Reason for contacting?

Sign Out

Virtual Assistant

Would you like to take the next step with this property? We can help you schedule a showing or virtual tour, or send you more details.

Yes, I would like more information.

Thank You for Your Reply, One of Our Agents will contact you as soon as possible

No, maybe later.

Thank you, you can always contact me via email, phone number or through the contact form.

Realhub AI

Lucy - Your AI-Powered Realtor

Update Your Temporary Password

Personalize your search

Enter your email and we'll notify you immediately when new listings match what you're looking for.

or enter email address

Already have an account ? Login here

Continue your home search

Already have an account ? Login here