Property
Beds
4
Full Baths
2
1/2 Baths
1
Year Built
1971
Sq.Footage
2,534
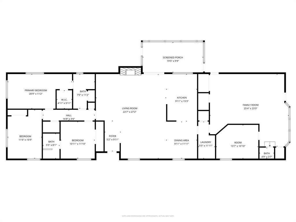
Welcome to your private retreat nestled on a beautifully treed lot--over one half acre--where timeless charm meets thoughtful updates and modern comfort. This spacious single-story home offers an inviting open-concept layout with rich wood flooring, exposed beams, and a stunning brick fireplace that anchors the main living area. The expansive living space flows seamlessly into the kitchen, featuring granite countertops, stainless steel appliances, abundant cabinetry, and a large breakfast bar—perfect for entertaining or everyday living. The home offers generously sized bedrooms, including a spacious primary suite with an ensuite bath and walk-in closet, while additional bedrooms provide flexibility for family, guests, or a home office. Each space has been thoughtfully designed to highlight comfort, functionality, and a warm, inviting feel. The bathrooms have been tastefully updated with a blend of classic and modern finishes. Multiple outdoor living spaces add to the appeal. A serene sunroom surrounded by nature and an expansive elevated deck is ideal for relaxing, entertaining, or enjoying peaceful views of the surrounding trees. The property has been expanded, with a separate garage, to allow the original garage to be converted into an additional living space with a bedroom, half bath, and large family room. In addition, a new roof with class 4 shingles was installed in 2020, and the two AC units were replaced in 2023 & 2024. The property sits on a large, private lot with mature trees, offering both beauty and privacy rarely found at this price point. Conveniently located with easy access to nearby amenities, while still providing a quiet, secluded feel, this home is a rare opportunity to own a tranquil retreat with modern updates and exceptional indoor-outdoor living.
Features & Amenities
Interior
-
Other Interior Features
Open Floorplan, Vaulted Ceiling(s), High Speed Internet
-
Total Bedrooms
4
-
Bathrooms
2
-
1/2 Bathrooms
1
-
Basement YN
NO
-
Cooling YN
YES
-
Cooling
Central Air, Electric
-
Fireplace YN
YES
-
Heating YN
YES
-
Heating
Exhaust Fan, Central, Natural Gas
-
Pet friendly
N/A
Exterior
-
Garage
Yes
-
Garage spaces
2
-
Construction Materials
Brick
-
Parking
Garage Faces Front
-
Pool
No
-
Waterfront YN
NO
Area & Lot
-
Lot Size(acres)
0.527
-
Property Type
Residential
-
Property Sub Type
Single Family Residence
Price
-
Sales Price
$425,000
-
Tax Amount
$9,443
-
Sq. Footage
2, 534
-
Price/SqFt
$167
HOA
-
Association
No
School District
-
Elementary School
Lakeridge
-
Middle School
Permenter
-
High School
Cedar Hill
Property Features
-
Sewer
Public Sewer
-
Tax Lot
29
-
Water Source
Public
Schedule a Showing
Showing scheduled successfully.
Mortgage calculator
Estimate your monthly mortgage payment, including the principal and interest, property taxes, and HOA. Adjust the values to generate a more accurate rate.
Your payment
Principal and Interest:
$
Property taxes:
$
HOA fees:
$
Total loan payment:
$
Total interest amount:
$
Location
County
Dallas
Elementary School
Lakeridge
Middle School
Permenter
High School
Cedar Hill
Listing Courtesy of Chad Smith , Realty Of America, LLC
RealHub Information is provided exclusively for consumers' personal, non-commercial use, and it may not be used for any purpose other than to identify prospective properties consumers may be interested in purchasing. All information deemed reliable but not guaranteed and should be independently verified. All properties are subject to prior sale, change or withdrawal. RealHub website owner shall not be responsible for any typographical errors, misinformation, misprints and shall be held totally harmless.
AGENT
Joe Boston
Call Joe today to schedule a private showing.
* Listings on this website come from the FMLS IDX Compilation and may be held by brokerage firms other than the owner of this website. The listing brokerage is identified in any listing details. Information is deemed reliable but is not guaranteed. If you believe any FMLS listing contains material that infringes your copyrighted work please click here to review our DMCA policy and learn how to submit a takedown request.© 2024 FMLS.